物件情報 | 貸店舗貸事務所

物件番号:1269

スマートフォンからでもQRコードを
読み取ってこの物件をご覧になれます。

Loupeビル 1~4階一棟貸"
この物件へのお問い合わせ
物件名称
Loupeビル 1~4階一棟貸
所在地
神戸市中央区北長狭通三丁目12-14
最寄駅
JR神戸線「三ノ宮・元町」駅
賃料
110万円 税込
共益費/管理費
SECOM警備費 21,230円 税込
建物構造
鉄骨造 4階建
建物階数
1~4階  一棟
築年月
昭和51年7月
敷金/保証金
賃料10ヵ月分
敷引/保証金償却
契約年数スライド方式 0%~55%
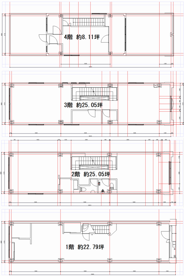
面積
1階22.79坪+2階25.05坪+3階25.05坪+4階8.11坪=延べ81.02坪
現況
物販店 営業中
引渡時期
2026年2月以降
契約形態
普通賃貸借契約
契約年数
2年
取引態様
媒介
仲介手数料
賃料1ヵ月分
備考
内装造作、設備等一部撤去予定(残置物は性能保証無)
業種:物販、美容サービス、軽飲食等(重飲食要相談)
審査内容により家賃保証会社加入要

最終更新日時 2025.11.10

GoogleMAP

神戸市中央区北長狭通三丁目12-14

お問合せ

TEL:078-333-0003 FAX:078-331-0370

営業時間 : 平日9:30~18:30 (土・日・祝休)

インターネットでのお問い合わせ